Septic System Design
Septic System Design
Commercial or Residential
Commercial or Residential
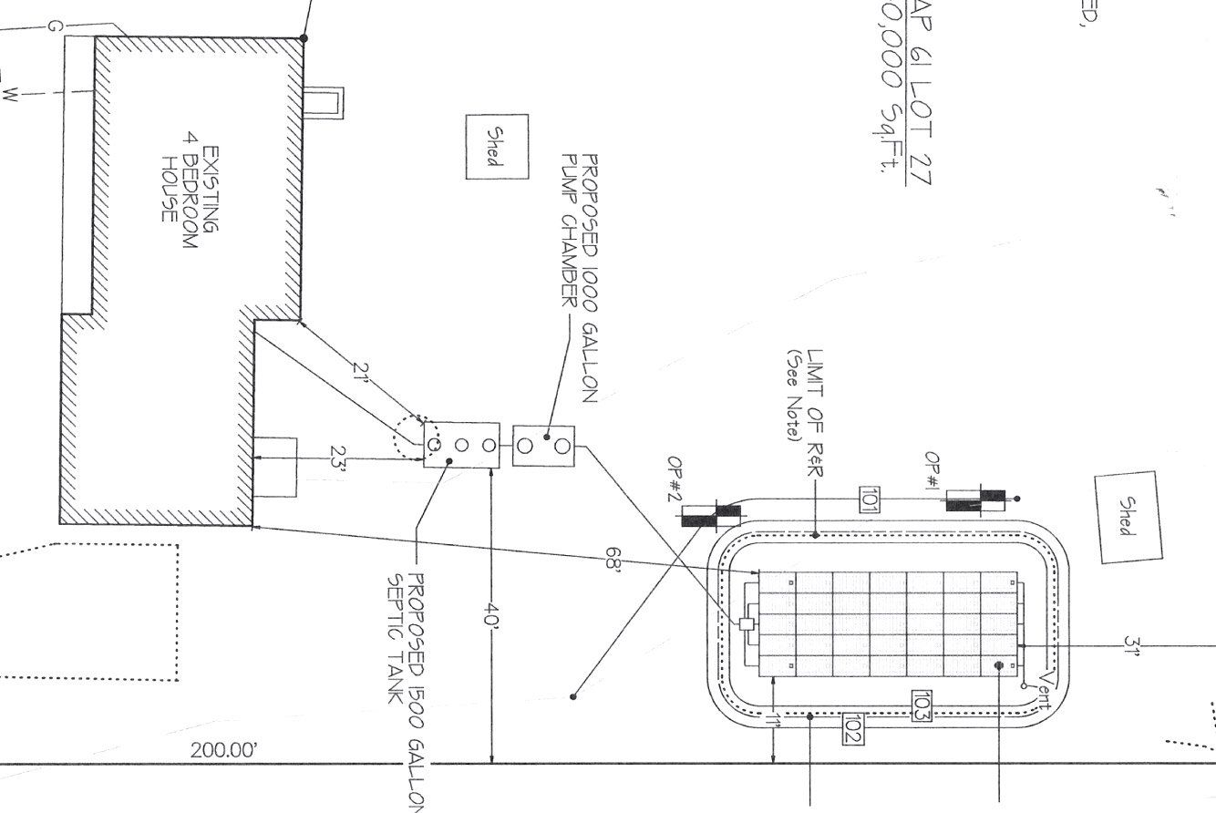
A well-designed septic system is a significant investment for any business or residential owner, yet most folks never give a second thought of where their sewage actually goes…as long as it goes away. At A.E. Wood Corp we know that the best long-term return on your investment in a septic system begins with proper design & planning.
Designed to Your Location
Designed to Your Location
Our goal is to provide septic system designs tailored to each location’s soil & site conditions. Doing so helps assure the best long term wastewater disposal and treatment onsite. We emphasize easy operation and maintenance details, which in turn will help monitor your system and ensure it provides years & years of dependable service.
What We Do for Each Septic Design Project:
- Contact your county health department for any background information such as"as-builts" or previous soil logs.
- Call for utility location service.
- Research parcel for property line survey or plat drawings.
- Field visit(s) to log test pits, system layout staking with wood lath and surveyors tape, elevations of critical system components with a laser level, field locate established property corners with a metal detector and tape measures, and to establish horizontal and vertical controls over the project.
- Contact owner/developer with site sketch proposal and further project approval.
- Complete the design package on CAD. We can also deliver the design package to your local health department for approval.
- Conduct a final cover inspection and complete an"as-built" drawing, which is given to the local health department and the home or property owner.






